Delightful, private, and superbly positioned, this extensively renovated home captures breathtaking views across the inlet and rural hills beyond, offering a lifestyle of calm, comfort, and contemporary elegance.
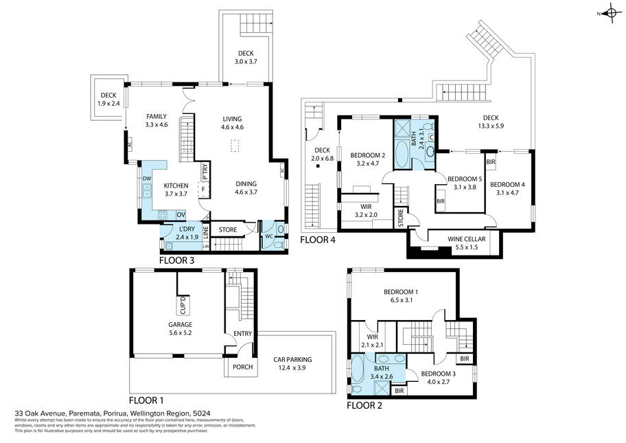
Set over four thoughtfully designed levels, the home is surrounded by a sheltered, bush-clad outlook that enhances privacy. Expansive decks on every level invite you to follow the sun, entertain with ease, or simply relax and enjoy the ever-changing scenery. Low-maintenance grounds with lawn and native bush make this an ideal choice for busy families.
Inside, the home is warm and stylish, featuring a refined mix of Spanish and Italian tiles, Austrian oak flooring, and brass accents that create a timeless coastal feel. Generous open-plan living spaces include a spacious lounge, dining area, and kitchen with family room - perfect for everyday family living and hosting friends.
The custom-built kitchen is a standout, finished with Caesarstone marble-effect benchtops and high-spec Bosch appliances, including an induction hob and combination steam oven. A discreet scullery with laundry adds both practicality and seamless functionality.
Accommodation is flexible and generous, offering four bedrooms plus a study, or the option of five bedrooms. The master suite is a true retreat with walk-in wardrobe, ensuite, and adjoining study or nursery, while three further bedrooms easily accommodate family, guests, or work-from-home needs complemented by a modern family bathroom and abundant storage.
Year-round comfort is assured with ducted DVS ventilation and heating, plus heat pump, while a double garage adds convenience and security.
The cellar offers something truly special - a space designed for indulgence. Envision private wine tastings, where fine vintages and good company are savoured. A rare and memorable feature that elevates this home from exceptional to unforgettable.
Our owners are under offer elsewhere, leaving this private, peaceful sanctuary ready for your family. Stunning views, flexible living, and a lifestyle to treasure - this is a home you'll love coming home to.
Download the property file by visiting www.agentsend.com/33OAK
KEEN TO VIEW OR CONTEMPLATING SELLING- CALL TEAM COOLING
Andy Cooling 0275836444 - andy.cooling@harcourts.co.nz
Charlie Cooling 0279680684 - charlie.cooling@harcourts.co.nz
Shona Cooling 021897527 - shona.cooling@harcourts.co.nz
Delightful, private, and superbly positioned, this extensively renovated home captures breathtaking views across the inlet and rural hills beyond, offering a lifestyle of calm, comfort, and contemporary elegance.
Set over four thoughtfully designed levels, the home is surrounded by a sheltered, bush-clad outlook that enhances privacy. Expansive decks on every level invite you to follow the sun, entertain with ease, or simply relax and enjoy the ever-changing scenery. Low-maintenance grounds with lawn and native bush make this an ideal choice for busy families.
Inside, the home is warm and stylish, featuring a refined mix of Spanish and Italian tiles, Austrian oak flooring, and brass accents that create a timeless coastal feel. Generous open-plan living spaces include a spacious lounge, dining area, and kitchen with family room - perfect for everyday family living and hosting friends.
The custom-built kitchen is a standout, finished with Caesarstone marble-effect benchtops and high-spec Bosch appliances, including an induction hob and combination steam oven. A discreet scullery with laundry adds both practicality and seamless functionality.
Accommodation is flexible and generous, offering four bedrooms plus a study, or the option of five bedrooms. The master suite is a true retreat with walk-in wardrobe, ensuite, and adjoining study or nursery, while three further bedrooms easily accommodate family, guests, or work-from-home needs complemented by a modern family bathroom and abundant storage.
Year-round comfort is assured with ducted DVS ventilation and heating, plus heat pump, while a double garage adds convenience and security.
The cellar offers something truly special - a space designed for indulgence. Envision private wine tastings, where fine vintages and good company are savoured. A rare and memorable feature that elevates this home from exceptional to unforgettable.
Our owners are under offer elsewhere, leaving this private, peaceful sanctuary ready for your family. Stunning views, flexible living, and a lifestyle to treasure - this is a home you'll love coming home to.
Download the property file by visiting www.agentsend.com/33OAK
KEEN TO VIEW OR CONTEMPLATING SELLING- CALL TEAM COOLING Andy Cooling 0275836444 - andy.cooling@harcourts.co.nz Charlie Cooling 0279680684 - charlie.cooling@harcourts.co.nz Shona Cooling 021897527 - shona.cooling@harcourts.co.nz